Kategória: Priemyselný objekt
Lokalita: Považská Bystrica
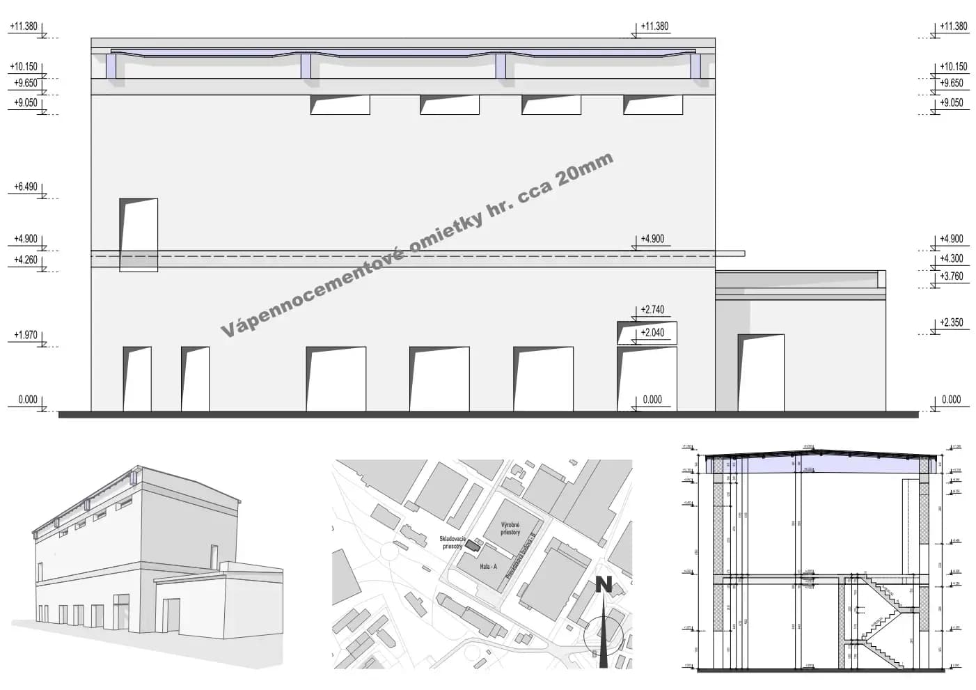
Skladový objekt
V rámci projektu bolo zrealizované zameranie skutkového stavu objektu a vypracovanie výkresovej dokumentácie pre objekt na základe zamerania.
Stav existujúcich konštrukcií
Stupeň dokumentácie
2024
Rok vypracovania
Obrázky





