Kategória: Novostavba, Občianska vybavenosť
Lokalita: Bratislava
Administratívny objekt
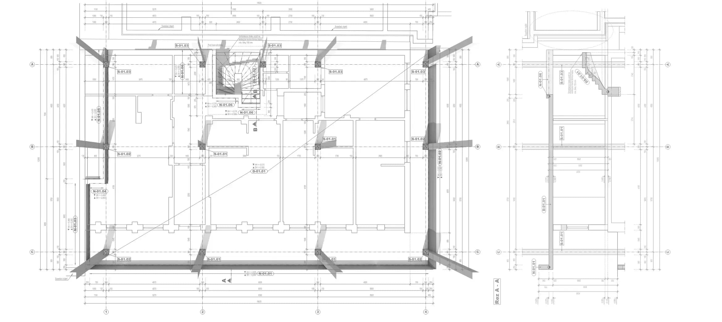
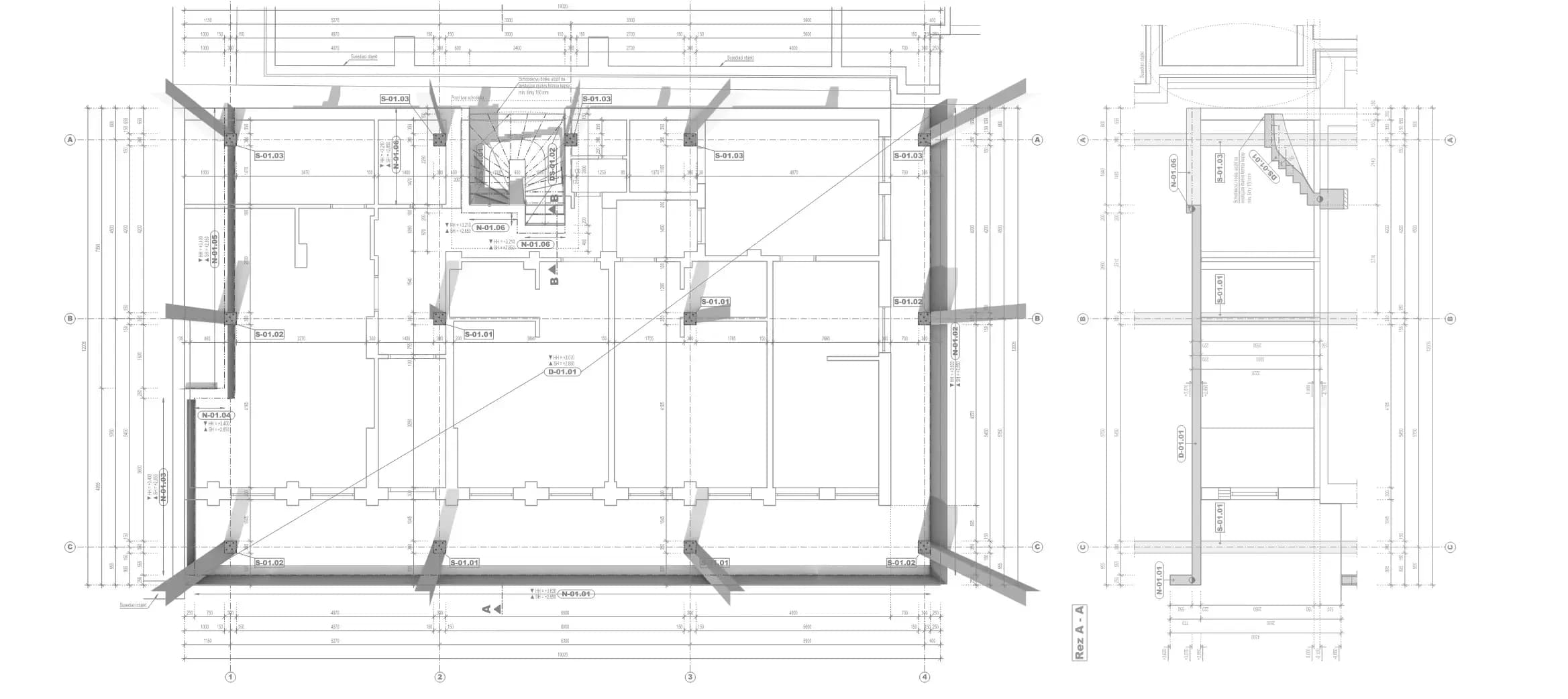
Pre projekt novostavby administratívneho objektu autoškoly bol vypracovaný vykonávací projekt, s potrebnými výkresmi výstuže a výkazmi materiálov. Statická analýza preukázala vhodnosť a reálnosť konceptu, pričom boli navrhnuté a posúdené všetky nosné konštrukcie objektu. Nosné konštrukcie objektu pozostávali z monolitických železobetónových prvkov.
Vykonávací projekt
Stupeň dokumentácie
2024
Rok vypracovania
Obrázky





